
Фильтр ФГГ-1200
цена от
3 519 700 руб.
- Исполнение – горизонтальное
- Номинальный диаметр DN – 1200 мм
- Номинальное давление PN – до 10,0 МПа
- Тонкость фильтрации – 4, 8, 12, 16 или 25 мм
- Максимальная производительность – 6400 м³/ч
- Материал корпуса – 09Г2С / 12Х18Н10Т / другая сталь
- Блочное исполнение – опционально
- Теплоизоляция – опционально
- Комплектация КИП, ЗРА – опционально
- Резервные фильтрующие элементы – опционально
Фильтр горизонтальный ФГГ-1200 (DN 1200, 6400 м³/ч) — флагманская модель для магистральных нефтепроводов и нефтеперерабатывающих заводов. Фильтр рассчитан на круглосуточную работу в условиях экстремальных нагрузок.
Примеры применения
- Месторождения Западной Сибири: Очистка нефти с высоким содержанием песка.
- Экспортные терминалы: Подготовка сырья перед поставкой за рубеж.
- Крупные ТЭЦ: Фильтрация мазута для горелок мощностью свыше 100 МВт.
Особенности фильтров для нефтеперекачивающих станций ФГГ-1200
- Высокая производительность.
- Специальное исполнение для регионов с высокой сейсмичностью.
- Производство как из углеродистой, так и из нержавеющей стали.
Технические параметры фильтра для нефти ФГГ-1200
| Обозначение | Фильтр ФГГ-1200 |
| Производительность, м³/ч | 6400 |
| Условное давление, Pу, МПа | 1,6; 2,5; 4,0; 6,3; 8,0 или 10,0 |
| Температура нефти, ℃ | От -15 до +80 |
| Температура нефтепродуктов, ℃ | От -20 до +80 |
| Степень фильтрации, мм | 4, 8, 12, 16 или 25 |
| DN, мм | 1200 |
| Dp, мм (внутренний диаметр корпуса) | 1600 |
| L, мм (расстояние от фланца корпуса до кромки осевого патрубка) | 7410 |
| L1, мм (расстояние от оси бокового патрубка) | 1950 |
| H, мм (расстояние от оси ФГГ до опоры) | 1600 |
| L2, мм (расстояние между опорами) | 5000 |
| L3, мм (расстояние до опоры) | 1760 |
| Обозначение | Блочный фильтр ФГГ-1200 |
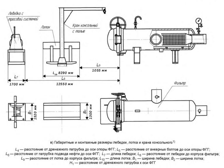
| L7, мм (длина лебедки) | 1700 |
| L8, мм (расстояние от лебедки до корпуса фильтра) | 12550 |
| L9, мм (расстояние от лотка до корпуса фильтра) | 1055 |
| L10, мм (длина лотка) | 8290 |
| В2, мм (ширина лотка) | 1300 |
| В1, мм (ширина лебедки) | 1520 |
| L5, мм (расстояние от анкерных болтов до оси опоры ФГГ) | 100 |
| L6, мм (расстояние от патрубка подвода нефти до оси ФГГ) | 1300 |
| L4, мм (расстояние от дренажного патрубка к оси опоры) | 2000 |
| Н1, мм (расстояние от дренажного патрубка до оси ФГГ) | 1020 |
| Радиус вылета быстроразъемного концевого затвора, мм | 2220 |
| Количество штурвалов быстроразъемного концевого затвора, шт | 2 |
Чертеж фильтра ФГГ-1200
Чертеж блочного фильтра ФГГ-1200
Расшифровка условного обозначения
Например, фильтр грязеуловитель горизонтальный ФГГ номинальным диаметром DN 1200 на номинальное давление PN 4,0 МПа, блочного исполнения, с осевым отводом нефти или нефтепродуктов, с правым расположением патрубка подвода нефти или нефтепродуктов, в сейсмостойком исполнении С по MSK — 64 [10], без теплоизоляции, вид климатического исполнения УХЛ1 по ГОСТ 15150 будет обозначаться следующим образом: ФГГ-1200-4,0-Б-0-П-С-УХЛ1.
Преимущества ООО "УЗСК"
- Выполнение проектов «под ключ» — от проектирования до ввода в эксплуатацию.
- Соответствие требованиям «Роснефть» и «Газпром».
- Экспертиза в области сертификации оборудования для стран ЕАЭС.
Каждый типоразмер ФГГ от ООО «УЗСК» — это результат инженерных разработок, строгого контроля качества и ориентации на потребности заказчика. Выбирая нас, вы получаете оборудование, которое работает там, где другие фильтры не справляются.
Заполните форму заказа






